WWW.KRAKOWSKAKAMIENICA.PL
INWESTYCJA JEST SKIEROWANA DO LUDZI, KTÓRZY CENIĄ SOBIE USTAWNY ROZKŁAD POMIESZCZEŃ ORAZ LOKALIZACJĘ BLISKĄ CENTRUM KRAKOWA
MIESZKANIE 2 POKOJOWE Z WIDNYM ANEKSEM KCUHENNYM - DZIELNICA STARE PODGÓRZE
RYNEK PODGÓRSKI - METRAŻ CAŁKOWITY I UŻYTKOWY MIESZKANIA WYNOSI 50 M2
Mieszkanie na wynajem o powierzchni całkowitej i użytkowej 50 m2 znajduje się w klimatycznej inwestycji mieszkaniowej przy Rynku Podgórskim w dzielnicy Stare Podgórze (blisko do komunikacji miejskiej, stacji Zabłocie, Placu Bohaterów Getta, Bulwarów Wiślanych). Inwestycja w której znajduje się mieszkanie została wybudowana w roku 1785 a obecni właściciele którzy zamieszkują budynek oraz administracja dbają o standard części wspólnych wraz z wizualną twarzą budynku. Budynek po generalnym remoncie wraz z mieszkaniami i lokalami na parterze.
Cała Inwestycja składa się z 1 budynku wielorodzinnego w którym łącznie znajduje się kilkanaście mieszkań i dwa lokale usługowe. W budynku są 4 kondygnacje naziemne oraz 1 podziemna.
Mieszkanie który chcemy państwu zaprezentować znajduje się na kondygnacji 1 piętro, jest 1-poziomowe, jednostronne i rozkładowo w formie amfilady. Ekspozycja okien względem stron świata: wschód, mieszkanie jest dobrze doświetlone światłem dziennym. Mieszkanie jest umeblowane i w stanie do ewentualnego własnego zaaranżowania, na własne potrzeby. Ogrzewanie miejskie. Mieszkanie posiada liczniki opomiarowania zużycia. Wszystkie instalacje w lokalu i w częściach wspólnych dobrej jakości i są opomiarowane. Czynsz miesięczny przed korektą wynosi 900 zł.
Ściany mieszkania tynkowane i odmalowane na jasne kolory, podłogi w pokojach i w aneksie kuchennym wykończone w parkiecie. Podłogi przedpokoju oraz łazienki razem z WC w terakocie wielkoformatowej. Ściany łazienki i osobnej kuchni we flizach oraz tynku gipsowym. Wysokość pomieszczeń wynosi 350 cm w najwyższym punkcie. Drzwi do mieszkania drewniane antywyważeniowe.
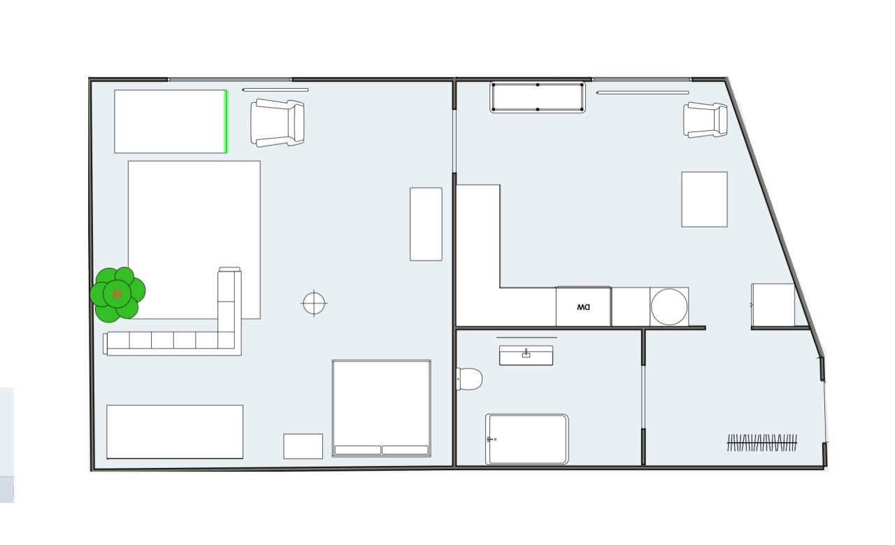
Mieszkanie składa się:
* pokoju dziennego - (26,70 m2)
* pokoju jadalnianego - (16,07 m2)
* aneksu kuchennego - (3 m2)
* łazienki razem z WC - (3,56 m2)
* korytarza - (3 m2)
Mieszkanie może mieć przeznaczenie: najmu długo lub krótkoterminowego. Mieszkanie jest usytuowane w kamienicy od strony ogrodu z widokiem na zieloną część podworca.
W czynszu administracyjnym dla mieszkania znajdują się opłaty za centralne ogrzewanie, zaliczkę eksploatacyjną, zimną wodę i ścieki, wywóz śmieci, fundusz remontowy, C.0. -zmienna stała opłata, ubezpieczenie budynku, oświetlenie części wspólnych, sprzątanie części wspólnych.
Lokalizacja: Mieszkanie zlokalizowana w dynamicznie rozwijającej się dzielnicy Krakowa, Starym Podgórzu, w rejonie ulicy Kalwaryjska. W niedalekim sąsiedztwie - okolice Rynku Podgórskiego i ulicy Nadwiślańska znajdują się liczne sklepy, punkty handlowo-usługowe, placówki użyteczności publicznej a także przystanki komunikacji miejskiej, zarówno tramwajowej jak i autobusowej, umożliwiające bezproblemowe dotarcie do wybranej części Krakowa.
Na terenie Starego Podgórza znajduje się wiele ciekawych historycznie, kulturowo i turystycznie miejsc takie jak na przykład Muzeum Sztuki Współczesnej w Krakowie (MOCAK), Cricoteka, Muzeum Fabryka Schindlera, Szlak Pamięci Ofiar Getta, kładka Ojca Bernatka, Fort Benedykta, neogotycki Kościół Św. Józefa oraz liczne galerie, kawiarnie i puby, a także urokliwe tereny rekreacyjne: Bulwary Wiślane, Park Bednarskiego, Kopiec Kraka i Krzemionki. Wszystko to sprawia, że obszar Starego Podgórza staje się jedną z najbardziej pożądanych lokalizacji, zarówno przez samych mieszkańców Krakowa jak i inwestorów z innych części Polski oraz z zagranicy.
Komunikacja miejska: 2 minuty pieszo do przystanku tramwajowego "Korona". Bardzo dobry dojazd do każdej części miasta.
PROSIMY O KONTAKT TELEFONICZNY Z NASZYM DZIAŁEM WYNAJMU DZIĘKI KTÓREMU UZYSKACIE PAŃSTWO WSZYSTKIE NIEZBĘDNE INFORMACJE PRZED PREZENTACJĄ NIERUCHOMOŚCI
CENA WYNAJMU: 3 000 ZŁ
NR OFERTY W BIURZE: MW 4399
798 280 189 (tel. kontaktowy)
mail: krakowskakamienica@gmail.com
--------------------------------------------------------------------------------------
Zamieszczone na naszych stronach oferty nie stanowią oferty w rozumieniu Kodeksu Cywilnego, a dane w nich zawarte mają jedynie charakter informacyjny.



