WWW.KRAKOWSKAKAMIENICA.PL
WYJĄTKOWA OFERTA - LOKAL NIEMIESZKALNY PRZY PLANTACH KRAKOWSKICH
NAJLEPSZĄ CENĘ ORAZ WSZYSTKIE NIEZBĘDNE INFORMACJE WRAZ Z WYLICZENIAMI KOSZTÓW UZYSKASZ WYŁĄCZNIE Z NASZĄ FIRMĄ - ZAPRASZAMY
LOKAL W DZIELNICY STARE MIASTO - UL. STUDENCKA - METRAŻ 20,53 M2
KAMIENICA W SERCU KRAKOWA Z NIESAMOWITĄ HISTORIĄ
BUDYNEK PO GENERALNYM REMONCIE
Kamienica przy ulicy Studenckiej to inwestycja położona w spokojnej, rezydencjalnej części Starego Miasta, zaledwie kilka minut pieszo od Rynku Głównego. Elegancką i zabytkową XIX-wieczną kamienicę wyróżnia sielankowa sceneria dziedzińca z ogrodem i pomnikiem przyrody. Najwyższa kondygnacja w budynku posiada wyjątkową atmosferę i niepowtarzalny widok na stary Kraków. Kamienica jest oddalona od głównych traktów samochodowych ale jest jednocześnie bardzo blisko Plant, Rynku Głównego, Bulwarów Wiślanych, Zamku na Wawelu. Wyjątkowość kamienicy dodają zlokalizowane tuż obok ogrody Mehoffera nadające tej lokalizacji przestrzeni oraz intymności i spokoju.
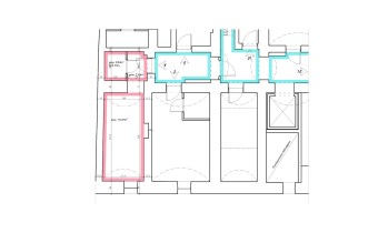
Lokal składa się z:
- pokój z aneksem - 15,50 m2
- łazienki razem z WC - 2,63 m2
- korytarza - 2,53 m2
Lokal posiada księgę wieczystą i stanowi odrębną własność. Wysokość pomieszczeń w lokalu wynosi 270 cm.
Ekspozycja nowych drewnianych okien względem stron świata: - południe sprawia, że lokal jest doświetlony światłem dziennym. Lokal znajduje się od strony cichej ulicy względem usytuowania w kamienicy.
Jest to nieruchomość idealna na cele inwestycyjne. W budynkach w okolicy funkcjonują hotele i apartamenty wynajmowane na krótkie terminy. Z uwagi na niewielką odległość od Uniwersytetu Jagiellońskiego lokalizacją zainteresowane są również osoby studiujące z całego świata. Dogodny dojazd w każde miejsce Krakowa, blisko przystanki: zarówno tramwajowy jak i autobusowy.
PROSIMY O KONTAKT TELEFONICZNY DZIĘKI KTÓREMU UZYSKACIE PAŃSTWO WSZYSTKIE NIEZBĘDNE INFORMACJE PRZED PREZENTACJĄ NIERUCHOMOŚCI
Cena lokalu w stanie do wprowadzenia: 411 000 ZŁ
Nr oferty w biurze: MS 4185
798 280 189 (tel. kontaktowy)
mail: krakowskakamienica@gmail.com
SKUTECZNIE POMAGAMY W ZDOBYCIU
KREDYTU NA ZAKUP WYBRANEJ NIERUCHOMOŚCI
---------------------------------------------------------------------------------------
Zamieszczone na naszych stronach oferty nie stanowią oferty w rozumieniu Kodeksu Cywilnego, a dane w nich zawarte mają jedynie charakter informacyjny.



