WWW.KRAKOWSKAKAMIENICA.PL
NAJLEPSZĄ CENĘ ORAZ WSZYSTKIE NIEZBĘDNE INFORMACJE WRAZ Z WYLICZENIAMI KOSZTÓW UZYSKASZ WYŁĄCZNIE Z NASZĄ FIRMĄ - ZAPRASZAMY
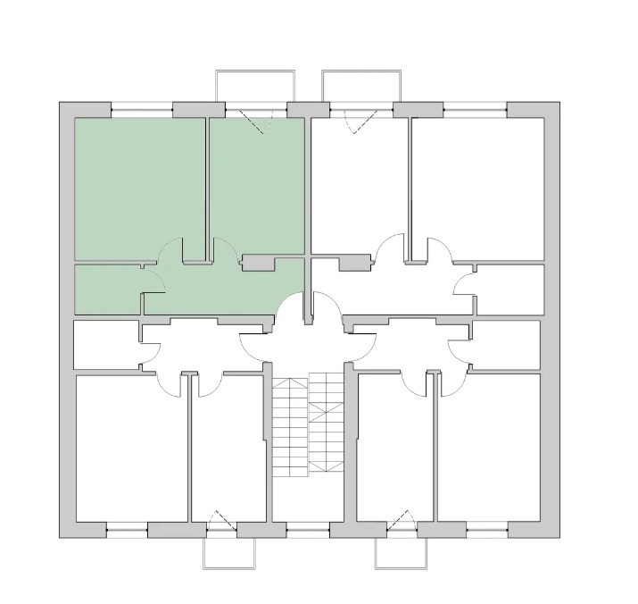
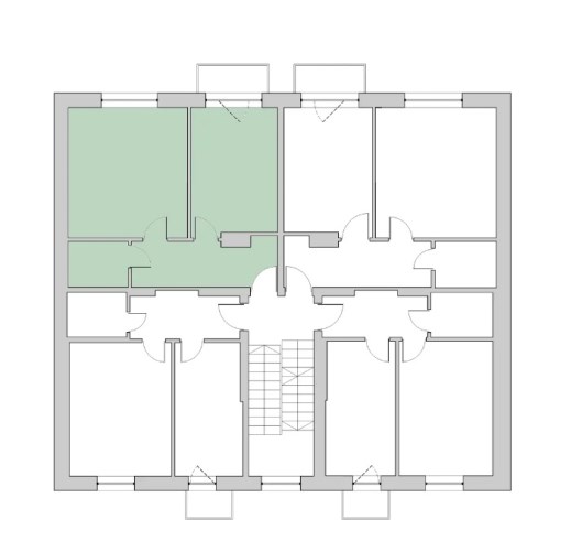
NIERUCHOMOŚĆ 2 - POKOJE W PRESTIŻOWEJ INWESTYCJI W DZIELNICY STARE PODGÓRZE
Na sprzedaż: Dwupokojowe mieszkanie o powierzchni 42.58 m2 w nowej, kameralnej inwestycji o wyjątkowym charakterze.
Charakterystyka: To mieszkanie znajduje się w kamienicy o bogatej historii sięgającej aż do 1928 roku. Budynek został wzniesiony w stylu modernistycznym, co nadaje mu niezwykły urok i unikalny charakter. Posiada ono funkcjonalny układ, zapewniający wygodną przestrzeń do życia.
Opis inwestycji: Mieszkania w tej kamienicy to harmonijne połączenie nowoczesności i historii, co zapewnia komfort mieszkania w wyjątkowym i klimatycznym otoczeniu.
Mieszkanie sprzedawane jest w stanie wyższy deweloperskim, co oznacza, że zostało wykończone pod względem surowym, pozostawiając decyzję o wystrój i aranżację wnętrz w gestii przyszłych właścicieli.
W mieszkaniu znajdują się podstawowe instalacje elektryczne i hydrauliczne, okna i drzwi zewnętrzne, a także przyłącza do sieci telewizyjnej i internetowej.
Nowi właściciele mają możliwość samodzielnego dostosowania wykończenia wnętrz do swoich potrzeb i gustów. Istnieje również opcja wyboru dodatkowego wyposażenia, takiego jak meble kuchenne, podłogi czy armatura łazienkowa, co umożliwia stworzenie spersonalizowanej przestrzeni.
Zdjęcia zamieszczone w ogłoszeniu przedstawiają przykładowe aranżacje.
Lokalizacja: Jednym z atutów tej oferty jest doskonała lokalizacja. Kamienica znajduje się w dobrze skomunikowanej dzielnicy Krakowa, co gwarantuje szybki i łatwy dostęp do centrum miasta oraz innych kluczowych punktów.
Zaledwie 10 minut do centrum sprawia, że mieszkanie jest wyjątkowo atrakcyjne dla osób poszukujących komfortu życia w dogodnej lokalizacji.
Dzięki tej propozycji mieszkania, będą Państwo mogli cieszyć się nie tylko nowoczesnym wnętrzem, ale także bogatą historią kamienicy oraz bliskością centrum Krakowa.
Serdecznie zapraszamy do kontaktu w celu uzyskania dodatkowych informacji oraz umówienia się na prezentację tego wyjątkowego mieszkania.
CENA: 749 000 PLN
NR OFERTY W BIURZE: MS 4515
798 280 189 (tel. kontaktowy)
krakowskakamienicagmail.com
SKUTECZNIE POMAGAMY W ZDOBYCIU
KREDYTU NA ZAKUP WYBRANEJ NIERUCHOMOŚCI
----------------------------------------------------------------------------
Zamieszczone na naszych stronach oferty nie stanowią oferty w rozumieniu Kodeksu Cywilnego, a dane w nich zawarte mają jedynie charakter informacyjny.



