WYJĄTKOWA OFERTA - MIESZKANIE W SERCU KROWODRZY
NAJLEPSZĄ CENĘ ORAZ WSZYSTKIE NIEZBĘDNE INFORMACJE WRAZ Z WYLICZENIAMI KOSZTÓW UZYSKASZ WYŁĄCZNIE Z NASZĄ FIRMĄ
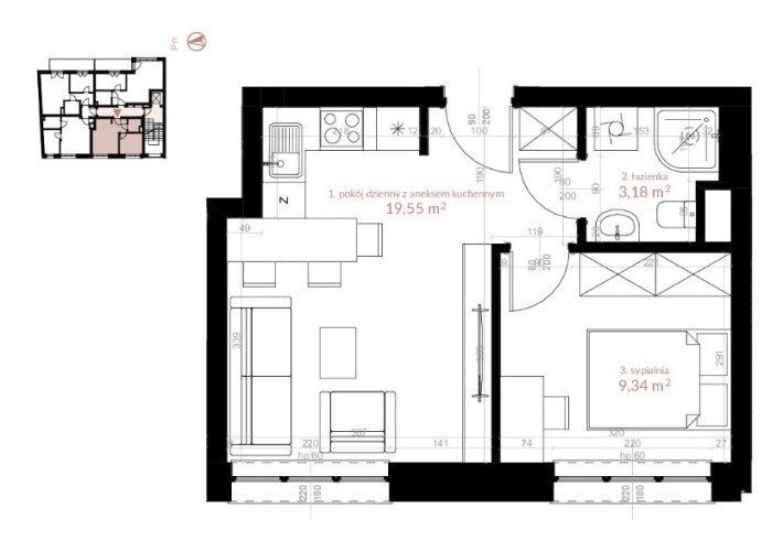
Na sprzedaż oferujemy wyjątkowe, dwupokojowe mieszkanie o powierzchni 32,07 m², położone na trzecim piętrze eleganckiej, odrestaurowanej kamienicy przy ul. Chocimskiej w dzielnicy Krowodrza (Łobzów) – jednej z najbardziej pożądanych lokalizacji w Krakowie.
To idealna propozycja zarówno dla osób poszukujących komfortowego lokum w prestiżowym otoczeniu, jak i dla inwestorów planujących wynajem krótko- lub długoterminowy.
Mieszkanie w stanie deweloperskim – gotowe do wykończenia według własnej aranżacji i gustu. Przemyślany układ pomieszczeń zapewnia pełną funkcjonalność i wygodę na niewielkiej powierzchni.
Rozkład pomieszczeń:
przestronny salon z aneksem kuchennym,
sypialnia z miejscem na szafę w zabudowie,
łazienka z miejscem na wannę lub prysznic.
W mieszkaniu wykonano komplet instalacji, w tym przygotowanie pod montaż klimatyzacji, co pozwala na szybkie dostosowanie lokalu do potrzeb przyszłego właściciela.
Ogrzewanie miejskie (MPEC) gwarantuje komfort i niskie koszty eksploatacji.
Wysokiej jakości drewniana stolarka okienna zapewnia doskonałą izolację akustyczną i termiczną.
Budynek wyposażony jest w nowoczesną, cichą windę, obsługującą wszystkie kondygnacje, co czyni inwestycję komfortową i przyjazną także osobom starszym czy rodzinom z dziećmi.
Ulica Chocimska to kameralna, zielona część Krowodrzy, z zachowanym klimatem krakowskiej zabudowy. Okolica łączy w sobie spokój i doskonały dostęp do miejskiej infrastruktury.
W bezpośrednim sąsiedztwie znajdują się liczne sklepy, punkty usługowe, restauracje, kawiarnie oraz plac targowy.
W promieniu krótkiego spaceru dostępne są również szkoły, przedszkola oraz uczelnie wyższe — AGH, Uniwersytet Jagielloński, Politechnika Krakowska, Uniwersytet Pedagogiczny.
Miłośnicy spacerów i rekreacji docenią bliskość Parku Jordana, Błoń Krakowskich oraz Parku Krakowskiego.
Dodatkowym atutem jest publiczny basen zlokalizowany naprzeciwko budynku.
Mieszkanie znajduje się w miejscu doskonale skomunikowanym z resztą miasta:
w zasięgu kilku minut pieszo – ul. Królewska, z wieloma liniami tramwajowymi zapewniającymi szybki dojazd do centrum (ok. 10 minut do Rynku Głównego),
w pobliżu również przystanki przy ul. Czarnowiejskiej, Alei Kijowskiej i Alei Trzech Wieszczów, umożliwiające podróż w każdym kierunku Krakowa.
Doskonała lokalizacja – spokojna ulica w centrum Krowodrzy
Nowoczesny standard budynku z windą
Ogrzewanie i ciepła woda z sieci miejskiej (MPEC)
Przygotowanie pod klimatyzację
Drewniana stolarka okienna
Bliskość terenów zielonych, uczelni i centrum miasta
Idealna propozycja dla singla, pary lub inwestora
PROSIMY O KONTAKT TELEFONICZNY DZIĘKI KTÓREMU UZYSKACIE PAŃSTWO WSZYSTKIE NIEZBĘDNE INFORMACJE PRZED PREZENTACJĄ NIERUCHOMOŚCI
CENA : 767 880 ZŁ
NR OFERTY W BIURZE: MS 4359
798 280 189 (tel. kontaktowy)
krakowskakamienica@gmail.com
--------------------------------------------------------------------------------------
Zamieszczone na naszych stronach oferty nie stanowią oferty w rozumieniu Kodeksu Cywilnego, a dane w nich zawarte mają jedynie charakter informacyjny.



