WYJĄTKOWA OFERTA - MIESZKANIE W KAMERALNEJ INWESTYCJI, BRONOWICE WIELKIE
NAJLEPSZĄ CENĘ ORAZ WSZYSTKIE NIEZBĘDNE INFORMACJE WRAZ Z WYLICZENIAMI KOSZTÓW UZYSKASZ WYŁĄCZNIE Z NASZĄ FIRMĄ
PRZESTRONNE MIESZKANIE Z TRZEMA BALKONAMI, KOMÓRKĄ LOKATORSKĄ WLICZONĄ W CENĘ ORAZ MOŻLIWOŚCIĄ ZAKUPU MIEJSCA POSTOJOWEGO W GARAŻU PODZIEMNYM - UL. SMĘTNA.
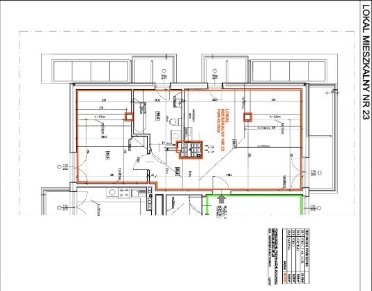
Na sprzedaż oferujemy funkcjonalne, dwupokojowe mieszkanie o powierzchni 45,76 m², zlokalizowane na drugim piętrze kameralnego, trzykondygnacyjnego budynku przy ul. Smętnej, w spokojnej części dzielnicy Bronowice w Krakowie.
Zgodnie z załączonym rzutem mieszkanie składa się z:
Salonu z aneksem kuchennym – 23,21 m²
Przestronna część dzienna z miejscem na strefę wypoczynkową, jadalnię oraz aneks kuchenny.
Sypialni – 8,80 m²
Ustawny pokój z miejscem na duże łóżko, szafę oraz dodatkową zabudowę.
Korytarza – 5,64 m²
Funkcjonalna komunikacja między pomieszczeniami z możliwością zabudowy szafy wnękowej.
Łazienki – 6,62 m²
Miejsce na wannę lub prysznic, umywalkę, WC oraz pralkę.
Do mieszkania przynależy komórka lokatorska o powierzchni 4,01 m² (w cenie) oraz możliwość zakupu miejsca postojowego w garażu podziemnym.
Dużym atutem mieszkania jest obecność trzech balkonów o łącznej powierzchni 12,35 m2, co jest rzadko spotykanym rozwiązaniem. Jeden z nich ma ekspozycję północną, natomiast dwa pozostałe – ekspozycję wschodnią. Taki układ zapewnia doskonałe doświetlenie wnętrz oraz wiele możliwości wypoczynku na świeżym powietrzu o różnych porach dnia.
Metraż balkonów wraz z ekspozycją:
– 7,11 m² – ekspozycja północna,
– 2,62 m² – ekspozycja wschodnia,
– 2,62 m² – ekspozycja wschodnia.
Mieszkanie jest oferowane w stanie deweloperskim, co pozwala nowemu właścicielowi na indywidualną aranżację wnętrza.
Wysoka jakość wykonania budynku i nowoczesne rozwiązania techniczne zapewniają komfort użytkowania przez lata.
Specyfikacja techniczna:
Stolarka okienna PCV, trzyszybowa, o wysokich parametrach izolacyjnych.
Drzwi wejściowe – drewniane, solidne.
Bramy wjazdowe aluminiowe.
Ocieplenie budynku: styropian 18 cm (λ = 0,036 W/mK).
Ogrzewanie: w pełni zautomatyzowana kotłownia gazowa.
Pełne opomiarowanie z systemem odczytu radiowego.
Kompletne instalacje (woda, prąd, gaz, kanalizacja, wentylacja).
Internet światłowodowy, monitoring, TV, domofon.
Możliwość montażu klimatyzacji (na tarasie lub w garażu podziemnym).
Mieszkanie położone jest w zielonej, spokojnej części Bronowic, w pobliżu pełnej infrastruktury handlowo-usługowej i rekreacyjnej.
W zasięgu spaceru znajdują się:
sklepy, restauracje, kawiarnie, punkty usługowe,
apteki, szkoły, przedszkola i uczelnie wyższe,
parki: Park Eliasza Radzikowskiego, Park Tetmajera,
ścieżki spacerowe i trasy rowerowe.
Doskonała komunikacja miejska:
liczne linie autobusowe (ul. Radzikowskiego, Rondo Ofiar Katynia, ul. Jasnogórska, ul. Conrada, ul. Armii Krajowej),
szybki dojazd do centrum Krakowa,
w niedalekiej odległości linia tramwajowa przy ul. Bronowickiej.
Cena lokalu (netto): 759 600 zł + 8% VAT
Cena komórki lokatorskiej (4,01 m²): wliczona w cenę mieszkania
Cena miejsca postojowego (ok. 14,2 m²): 49 680 zł (z VAT 8%)
Cena 1 m² (netto): 16 073 zł
PROSIMY O KONTAKT TELEFONICZNY DZIĘKI KTÓREMU UZYSKACIE PAŃSTWO WSZYSTKIE NIEZBĘDNE INFORMACJE PRZED PREZENTACJĄ NIERUCHOMOŚCI
CENA : 820 638 ZŁ
NR OFERTY W BIURZE: MS 4371
798 280 189 (tel. kontaktowy)
krakowskakamienica@gmail.com
--------------------------------------------------------------------------------------
Zamieszczone na naszych stronach oferty nie stanowią oferty w rozumieniu Kodeksu Cywilnego, a dane w nich zawarte mają jedynie charakter informacyjny.



